Sold STC Turkey Street, Enfield, EN3 £625,000
DEVELOPMENT OPPORTUNITY
Located in EN3 and within close proximity to Turkey Street Train Station as well as local amenities
Existing property consists of a three bedroom family home which is currently rented on an AST until January 2021
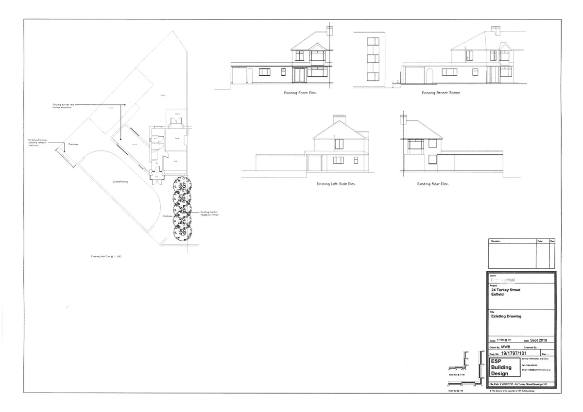
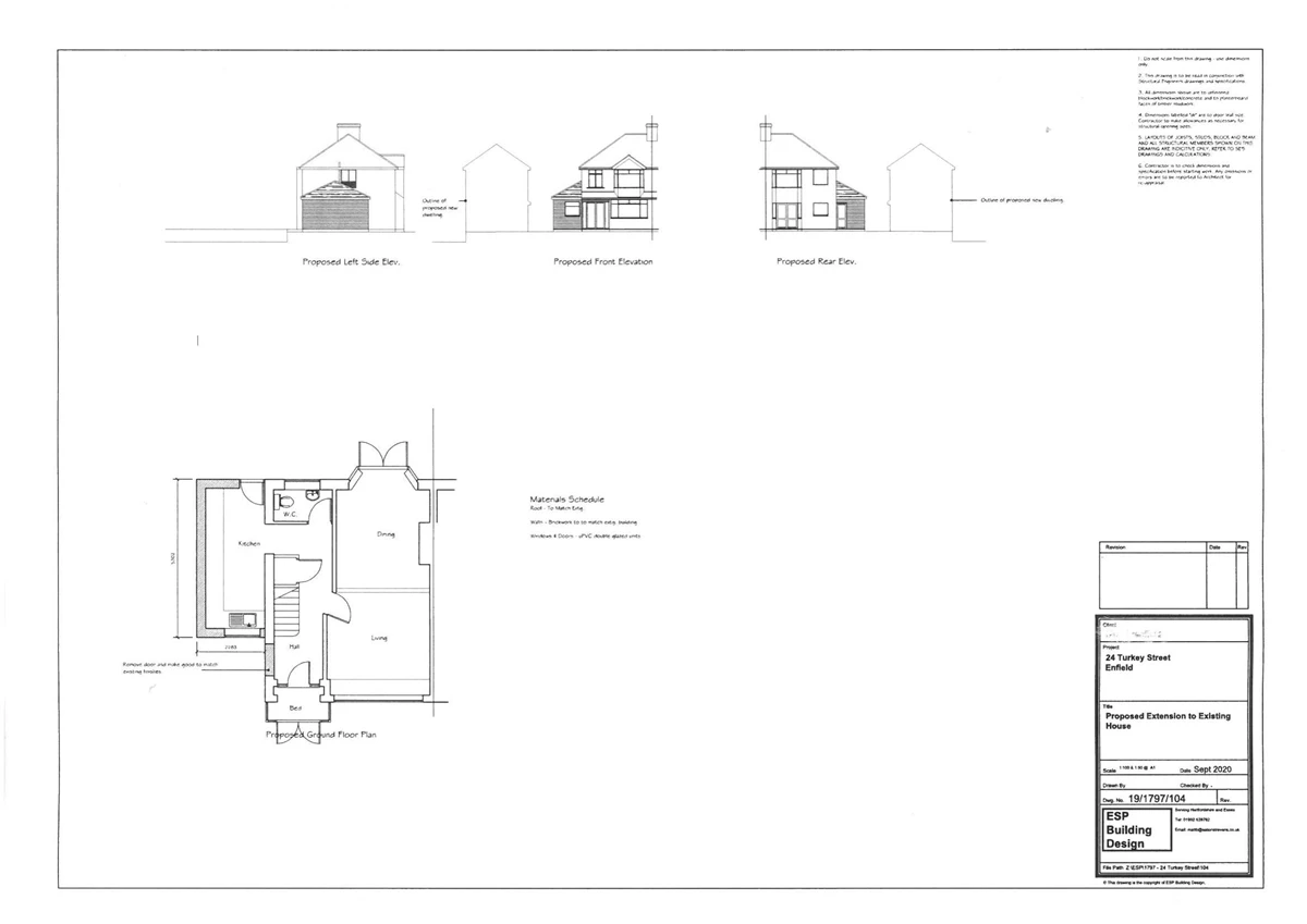
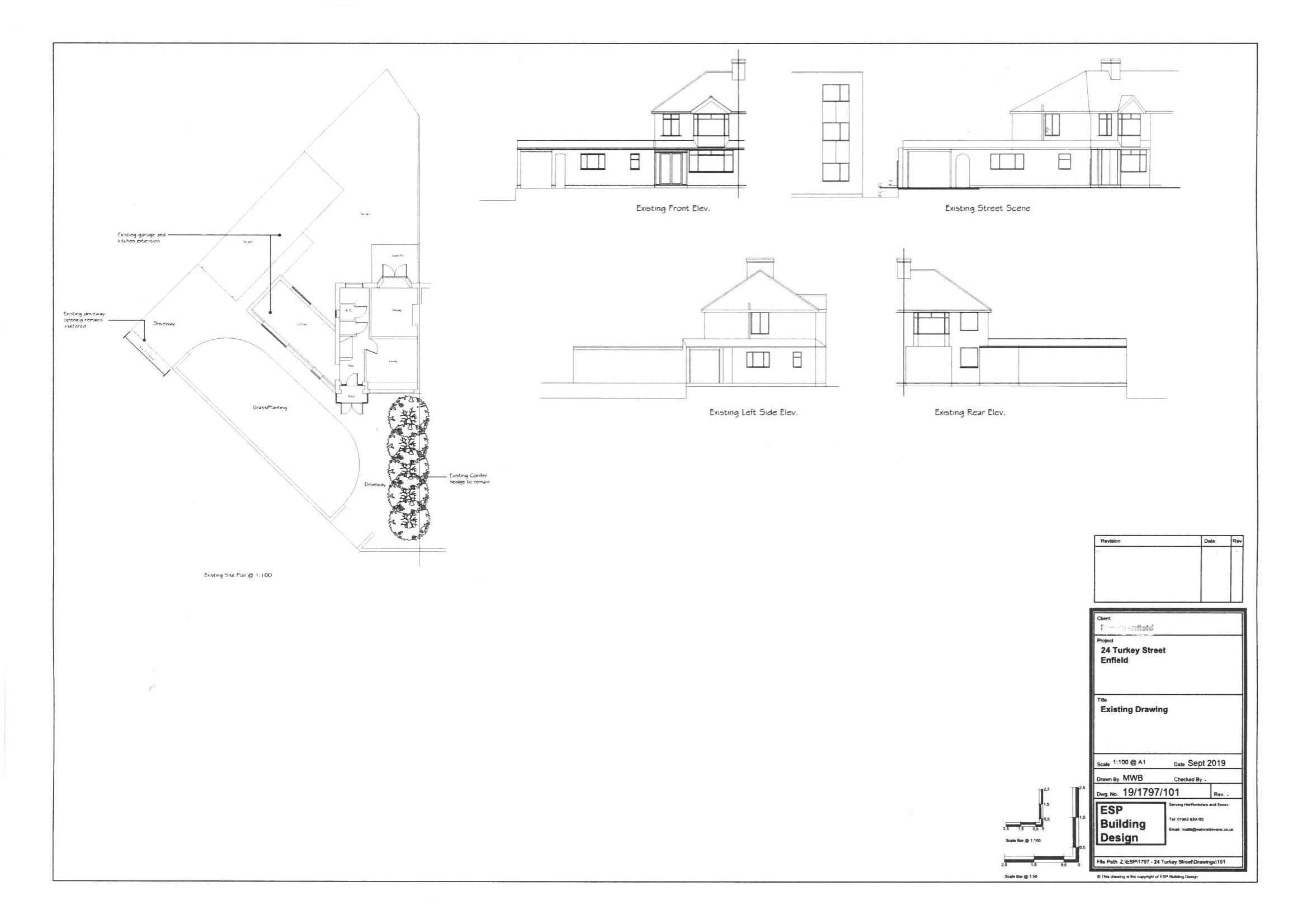
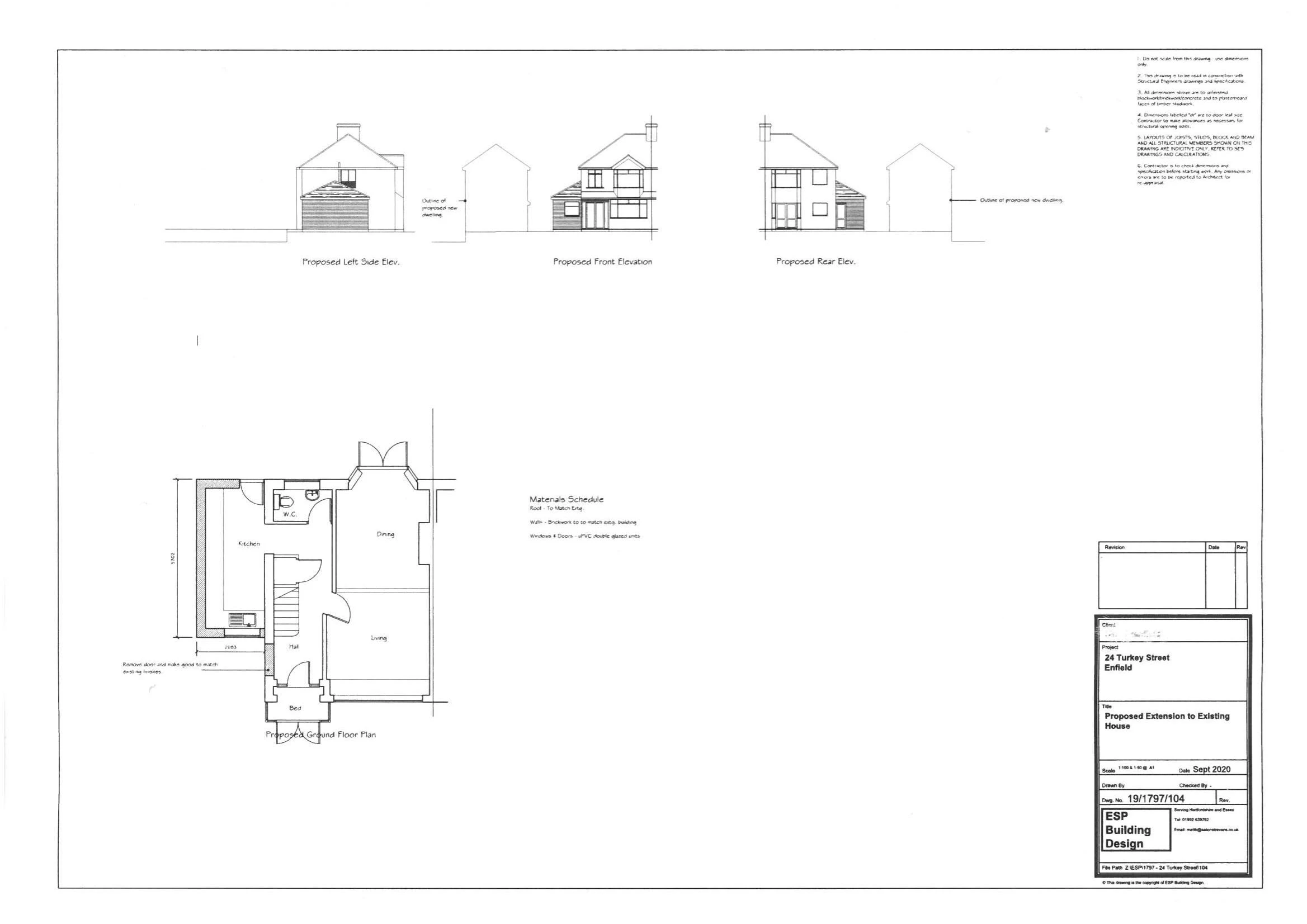
Planning permission in place for a detached two bedroom dwelling to the side elevation of the existing build
Freehold
DEVELOPMENT OPPORTUNITY!
Roberto and Co are delighted to offer this development opportunity located in EN3 and within close proximity to Turkey Street Train Station as well as local amenities.
The existing property consists of a three bedroom family home which is currently rented on an AST until May 2022
There is current planning permission in place for a detached two bedroom dwelling to the side elevation of the existing build.
IMPORTANT NOTICE
Descriptions of the property are subjective and are used in good faith as an opinion and NOT as a statement of fact. Please make further specific enquires to ensure that our descriptions are likely to match any expectations you may have of the property. We have not tested any services, systems or appliances at this property. We strongly recommend that all the information we provide be verified by you on inspection, and by your Surveyor and Conveyancer.
Book a Valuation



































