Sold STC Tarpan Way, Turnford, Broxbourne, EN10 Offers in excess of £425,000
Three Bedroom House
Semi-Detached
Immaculately Presented
Private PARKING for 2 cars
Sought-after LOCATION
Modern Throughout
Rear GARDEN
Freehold
ROBERTO & CO are pleased to present this immaculately maintained three-bedroom semi-detached home, situated within a quiet and well-regarded residential turning in Turnford, Broxbourne.
Beautifully presented throughout, the property has been tastefully decorated and carefully looked after, offering a modern, low-maintenance home that is ready to move straight into.
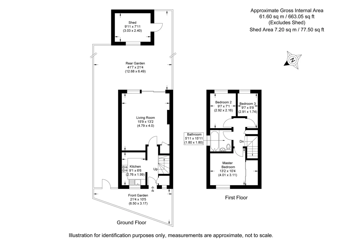
GROUND FLOOR
The property is entered via a contemporary front door into a welcoming hallway, immediately reflecting the high standard found throughout. Hard flooring runs seamlessly across the ground floor, enhancing the clean and modern feel of the home.
The kitchen is finished in a classic shaker-style design and is fully equipped with integrated appliances, combining practicality with timeless appeal.
To the rear, the living and dining room provides a generous and versatile space for both everyday living and entertaining. A feature fireplace creates a focal point, while the room feels bright and airy thanks to a rear window and sliding glazed doors that open directly onto the garden.
FIRST FLOOR
Upstairs, the property offers three well-proportioned bedrooms. The principal bedroom is positioned to the front and benefits from ample space for wardrobes and additional furniture.
To the rear, there is a second double bedroom along with a further single bedroom, ideal for a child's room, home office or guest space.
The main bathroom is modern and stylish, fully tiled and fitted with a sleek bath and shower screen, offering a practical yet contemporary finish.
EXTERNAL FEATURES
The plot provides useful space to the side of the property, with direct access through to the rear garden.
Off-street parking for 2 cars is allocated within a private parking area located alongside the house.
The rear garden has been well maintained and features a modern patio area leading onto a neatly kept lawn. Mature planting borders add privacy and structure, with a shed positioned at the rear for additional storage.
LOCATION
Located in a popular residential area of Turnford, Broxbourne, the property enjoys easy access to local shops, well-regarded schools, green spaces and leisure facilities. Brookfield Retail Park is close by, while the A10 and M25 provide excellent road links. Nearby rail stations offer direct services into London, making the location ideal for commuters and families alike.
A superbly presented home offering modern interiors, excellent outdoor space and a highly convenient location - early viewing is strongly recommended through Roberto & Co.
IMPORTANT NOTICE
Descriptions of the property are subjective and are used in good faith as an opinion and NOT as a statement of fact. Please make further specific enquires to ensure that our descriptions are likely to match any expectations you may have of the property. We have not tested any services, systems or appliances at this property. We strongly recommend that all the information we provide be verified by you on inspection, and by your Surveyor and Conveyancer.
Book a Valuation

















































