CHAIN FREE
EXTENDED
SEMI Detached
Popular WEST CHESHUNT location
Large DRIVEWAY
Potential for further bedrooms (STPP)
Large KITCHEN DINER
Two Bathrooms
Freehold
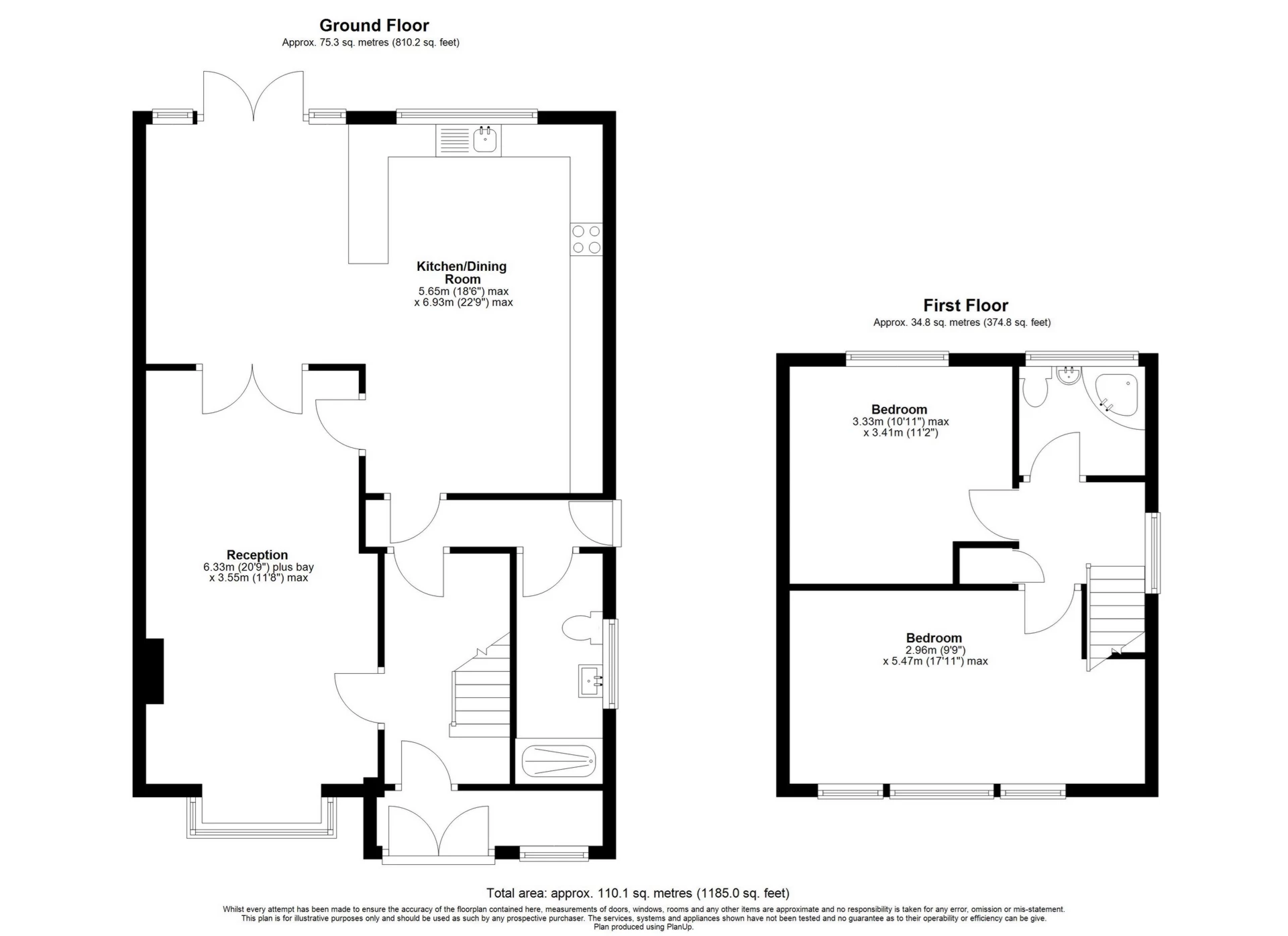
Roberto and Co are delighted to present this extended, spacious Two Double Bedroom Semi-Detached family home located within the sought after area of West Cheshunt.
The property boasts further potential to extend the first floor or loft to gain additional bedrooms (subject to any necessary planning consents).
The ground floor consists of an entrance hallway, bright and spacious double living area, a large shower room, spacious kitchen / dining room which leads out to a well-maintained rear garden, boasting a large outbuilding.
The first floor consists of two generously sized bedrooms and a family bathroom.
A large paved driveway to the front of the house provides off street parking for multiple vehicles.
Ideally situated within the sought after residential area of West Cheshunt, within close proximity to the highly regarded local schools, Cheshunt Town Centre as well as Cheshunt Train Station which offers excellent links to London Liverpool Street.
IMPORTANT NOTICE
Descriptions of the property are subjective and are used in good faith as an opinion and NOT as a statement of fact. Please make further specific enquires to ensure that our descriptions are likely to match any expectations you may have of the property. We have not tested any services, systems or appliances at this property. We strongly recommend that all the information we provide be verified by you on inspection, and by your Surveyor and Conveyancer.
Book a Valuation

















