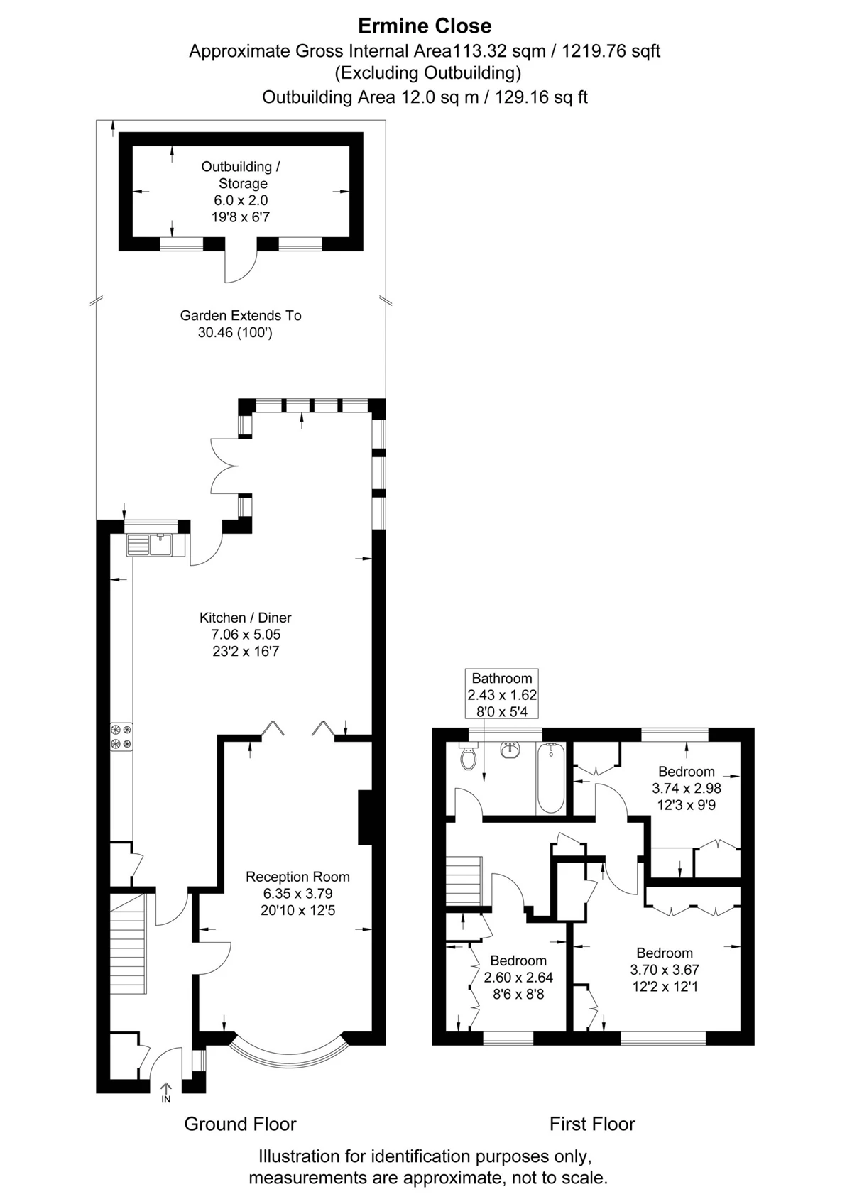
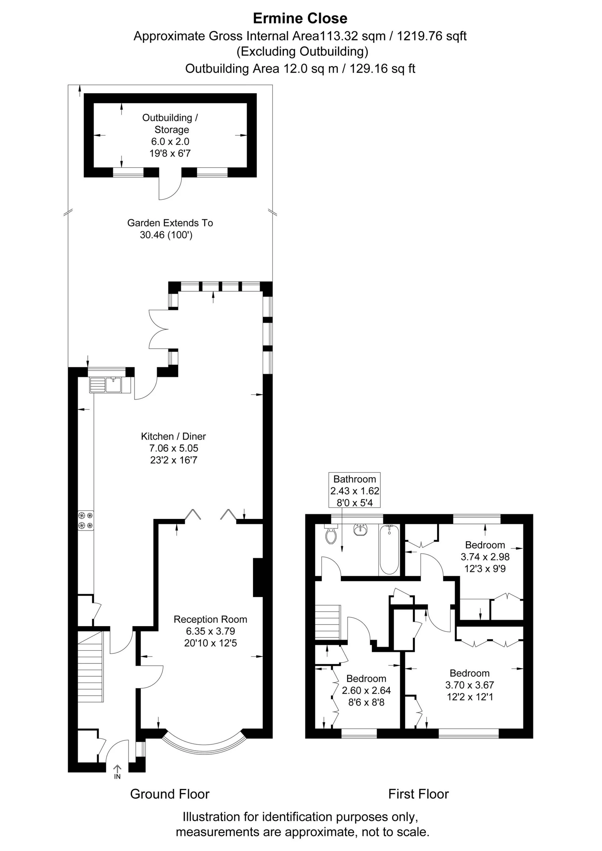
For Sale Ermine Close, Cheshunt, EN7 £480,000
Extended, spacious and impressive three-bedroom family home
Located within the sought after area of West Cheshunt
Entrance hallway
Bright and spacious living room
Impressive integrated kitchen
Dining area
Outbuilding suitable for a home office/workshop
Family bathroom
Drop-down staircase with access to a fully boarded loft
Ideally situated within proximity to the highly regarded local schools Cheshunt Town Centre as well as Cheshunt Train Station which offers excellent links to London Liverpool Street
Freehold
Roberto and Co are delighted to present this extended, spacious and impressive three-bedroom family home located within the sought after area of West Cheshunt.
The ground floor consists of an entrance hallway, bright and spacious living room, impressive integrated kitchen, dining area, as well as a conservatory which leads out to a well-maintained rear garden, boasting a brick built outbuilding suitable for a home office/workshop.
The first floor consists of three generously sized bedrooms, family bathroom as well as a drop-down staircase with access to a fully boarded loft.
Ideally situated within proximity to the highly regarded local schools, Cheshunt Town Centre as well as Cheshunt Train Station which offers excellent links to London Liverpool Street.
 
    IMPORTANT NOTICE
Descriptions of the property are subjective and are used in good faith as an opinion and NOT as a statement of fact. Please make further specific enquires to ensure that our descriptions are likely to match any expectations you may have of the property. We have not tested any services, systems or appliances at this property. We strongly recommend that all the information we provide be verified by you on inspection, and by your Surveyor and Conveyancer.
 
 
         Book a Valuation
    
    
        
    
        
            
            
        
    Book a Valuation
    









































